Главная / Проекты / Проекты домов / Проект 2-16

Проект 2-16

Проект 2-16
75 оценок

Дополнительные изображения: Проект 2-16

Проект 2-16
Проект 2-16
Проект 2-16
Проект 2-16

Интерьер 

Просторнейший дом! Чего только стоит двусветная гостиная необъятной площади, равной 82,8 кв. м! 5 спален, две из которых, верхних, с балконами; большой балкон второго света, две террасы, практичная кухня, расположенная рядом с гостиной, где можно организовать и зону столовой - в проекте гармонично сочетаются простор и функциональность. Каждый член вашей большой семье будет рад своему личному пространству!

Экстерьер 

Наличие достаточно большого количества всевозможных рубленых деталей позволяет говорить о русском стиле в деревянном домостроении, характерном для данного проекта. Отсутствие различных резных декоративных элементов компенсировано именно наличием выступающих конструкций - балконов, террас, выполненных в лаконичном ключе (излишняя "украшенность" придала бы дому ненужную при его габаритах помпезность). Оригинальность внешнему облику придает и сложная геометрия кровли.

Xарактеристики сруба



Цена сруба   1 456 000 руб.
Размер сруба 13 x 18 м
Общая площадь сруба по полу 310 м²
Количество спален (кол-во человек) 5 (8-10 человек)
Калькулятор-смета для
"Проект 2-16"

Общая площадь - 310 м2

Размеры сруба по осям - 13 х 18 м

Габариты дома (с учетом рубки в чашу) - 14 х 19 м

Площадь 1-го этажа - 180,6 м2, в том числе:

  • гостиная-столовая - 82,8 м2
  • кухня - 24 м2
  • спальня - 20 м2
  • спальня - 23 м2
  • санузел - 8,2 м2
  • тамбур - 2,9 м2
  • терраса - 9,7 м2
  • терраса - 10 м2

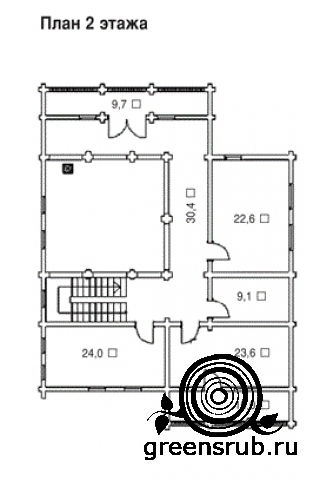
Площадь 2-го этажа - 129,4 м2, в том числе:

  • спальня - 22,6 м2
  • спальня - 24 м2
  • спальня - 23,6 м2
  • санузел - 9,1 м2
  • балкон второго света - 30,4 м2
  • балкон - 10 м2
  • балкон - 9,7 м2
Если вам понравился этот проект сруба,
узнайте как его построить до 30% дешевле
+7 (495) 128 4065

Заказать у гастрабайтеров на рынке :) шутка.

А если серьезно, вы можете бесплатно получить 20 советов по минимизации стоимости на свой e-mail.

Получить





Сэкономить время

Если Вы решили заказать сруб или у Вас появились вопросы, сэкономьте время и позвоните по телефону. Опытные менеджеры бесплатно ответят на любые Ваши вопросы.
+7 (495) 128 4065

Заказать звонок

А если Вам не удобно звонить прямо сейчас, закажите обратный звонок, и наши менеджеры перезвонят Вам в удобное для Вас время.

Как к Вам обратиться:

Ваш телефон:

Удобное время:

Не откладывайте
свою мечту
Заказать звонок

«ГринСруб»:
потому что надежно

nadezhnenko_03.png «ГринСруб» осуществляет производство и продажу срубов домов и бань с 1993 года.
nadezhnenko_06.png Компания «ГринСруб» сегодня — это крупное деревообрабатывающее предприятие, реализующее срубы на территории всего ЦФО.
nadezhnenko_08.png Показатели развития предприятия — наличие собственной современно оборудованной производственной базы и 8 бригад плотников.
nadezhnenko_10.png Гарантия высокого качества предоставляемых услуг — более 600 реализованных проектов, многочисленные положительные отзывы клиентов.
nadezhnenko_12.png Залог выгодных цен — работа без посредников, экономия на административных
и представительских расходах.
nadezhnenko_14.png

Успешное развитие компании и сознание социальной ответственности — основа для организации новых рабочих мест и реализации благотворительных проектов.

 

Калькулятор-смета для "Проект 2-16"

Сруб: колодец с установкой
2 184 000 руб.
Площадь стен: 560м2
Материал
1 456 000 руб.
Работа
728 000 руб.
Сруб, половые лаги, потолочные балки, стропильная система. Доставка. Установка.

Материал кровли

Нет кровли Нет кровли Рубероид Рубероид Металлическая черепица Металлическая черепица
Сове
туем
Мягкая кровля Мягкая кровля

Утепление кровли

Без утепления Без утепления Утепление для летнего дома Малый пирог (летний дом) Утепление для зимнего дома Полный пирог (зимний дом)
Сове
туем

Стоимость кровли

Площадь Материал Утепление Стоимость 1м2 по материалу Стоимость 1м2 по работе Итоговая стоимость 1м2 Итоговая стоимость кровли
350м2 Металло-черепица Металло-черепица 500 руб 800 руб 1300 руб 545 151 руб
Материал: нет. Утепление: нет.
Фундамент
0 руб.
142м

Тип фундамента

Без фундамента Без фундамента Столбчатый фундамент Столбчатый Свайный фундамент Свайный Ленточный фундамент Ленточный (50+50)x30 см
Сове
туем
Тип фундамента: нет.
Полы, Потолки
0 руб.
310м2 / 370м2

Полы

Без полов Без полов Черновые полы Черновые полы Чистовые полы Чистовые полы

Потолки

Нет потолков Нет потолков С потолками С потолками
Полы: нет. Потолки: нет.

Дополнительные услуги

Шлифовка (внутренняя) Шлифовка внутренняя Покраска Покраска Биозащита Биозащита Огнезащита Огнезащита Конопатка Конопатка
Отделки нет.
Итоговая стоимость .-
Бесплатно
вызвать мастера

Позвоните по телефону

Мы закрепим за Вами персонального менеджера, который компетентно ответит на все ваши вопросы.

+7 (495) 128-40-65

Обратитесь к онлайн консультанту

Онлайн консультант не в сети.

Закажите обратный звонок

Просто вышлите свой контактный номер телефона на форму обратной связи или на e-mail: zakaz@greensrub.ru

Напишите нам письмо

Используя форму обратной связи или на e-mail: zakaz@greensrub.ru

Вышлите нам, пожалуйста, максимум информации для того, чтобы мы могли максимально быстро и точно определить объем работ и их стоимость.

Создание сайта

Если Вам понравились проекты срубов, или у Вас возникли вопросы по Вашему индивидуальному проекту, производству срубов и сопутствующим услугам, или Вы решили записаться на бесплатную профессиональную консультацию, не откладывайте и свяжитесь с нами любым удобным способом:

Компания «ГринСруб» Наш адрес:
Москва, 101000,
ул. Покровка, д.17
Пешком 700м. от ст.метро Чистые пруды

Телефоны:

+7 (495) 128-40-65
Яндекс.Метрика
Вся информация (включая цены) представленная на сайте носит исключительно информационный характер и ни при каких условиях не является публичной офертой.